)
Atrium Villa
Single Family House
2024
Status
Under Construction
Location
Ljubljana, Slovenia
Area
513 m²
Program
Residental
Architecture
Ognen Arsov
Ana Kosi
Žiga Rošer
Sara Škarica
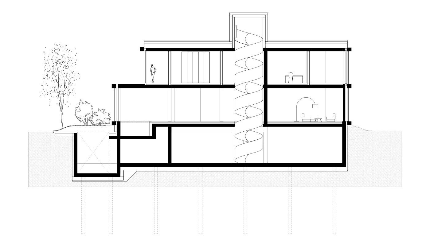
This single-family atrium villa is located in Rožna dolina, a part of Ljubljana, that is characterised by historic and modern villas. The specific boundary conditions of the plot form the starting point for the design and functional concept of the building. The broken geometry and the size of the plot dictate the form of the building, which follows the street lines and is quite close to the plot boundaries. In contrast to the classical design of a villa, which stands centrally on the plot, we have placed the building on the perimeter of the plot, freeing up space in the centre for a circular atrium. This ensures the introverted character of the building, which is located at end of the street row and exposed to traffic. The boundary between the street and the house or courtyard is marked by a brick wall, stacked in a 'zigzag' pattern. The brick walls are inserted between the concrete horizontal slabs. The façade creates the rhythm of an undulating curtain wall which closes the building to the street. In places the curtain wall is interrupted by window openings. The rhythm of the façade is continued in these parts by curtains which allow views to be blocked and the building to be shaded. The service part of the building with the garage is located in the basement, while the sleeping areas are located on the upper floor. This type of programming allows for maximum utilisation of the ground floor, which is entirely dedicated to the day living area with an above-ground spa pavilion and swimming pool.
Before / Location
)
)
)
)
)
)
)
Compact house in the centre of the plot
Displacement of the compact volume and its movement to the edge of the plot
The orientation of the house towards the atrium
The greening of the atrium
)
)
)
)
)
Ground Floor
)
First Floor
)
Rooftop
)
Underground
)
Section 1
)
Facade
)
Construction Process
)
)
)
)