)
Vila Ig
Single Family House
2025
Status
In progress
Location
Ig, Slovenia
Area
470 m²
Program
Residential
Architecture
Ognen Arsov
Ana Kosi
Žiga Rošer
Tina Božak
Nik Štrubelj
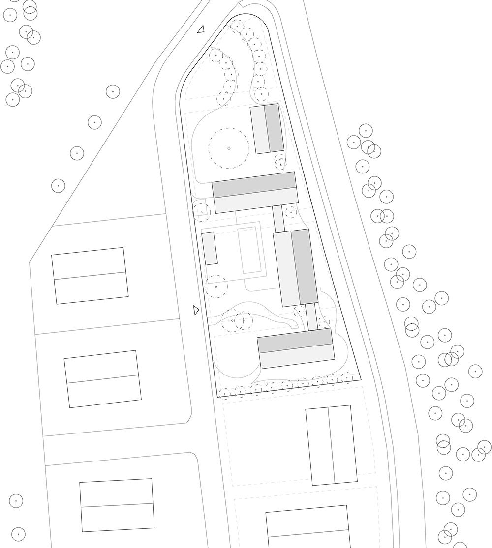
In the municipality of Ig, there is an undeveloped area intended for residential construction. It is surrounded by forests and meadows and a distinctly rural, village environment. A spatial act is planned for the area, which will determine the size of buildings and building plots.
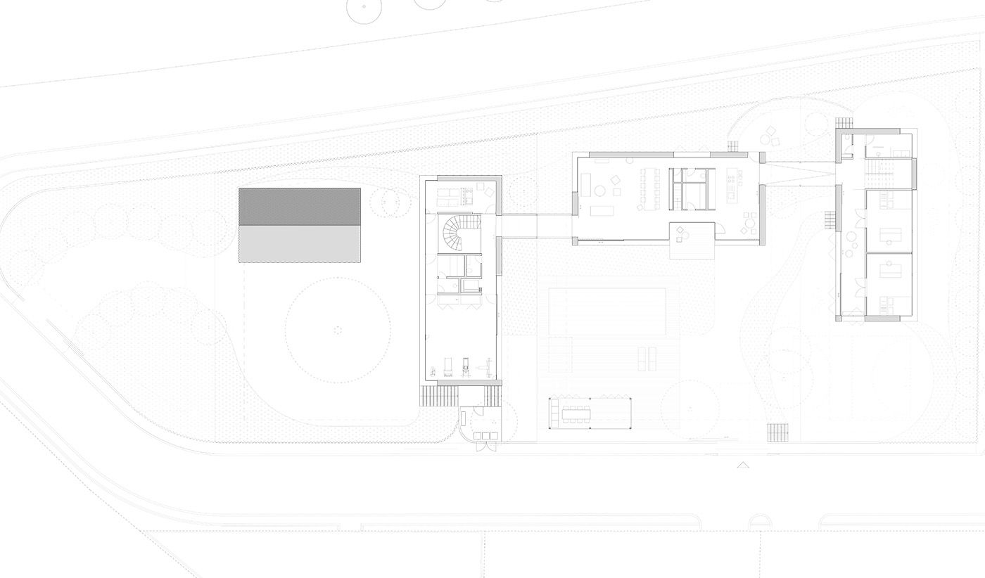
The investors wanted a larger single-family building, but due to space constraints, it was not possible to place it in the form of a single building or a single large building plot. The concept of Villa Ig is therefore based on the idea of creating a village – placing single-family houses in three main buildings, whose scale is in harmony with the surroundings and their character.
This design creates courtyards with diverse ambiences between the buildings. The positioning and rotation of the buildings create spaces of different sizes and with varying degrees of intimacy. The materialization of the buildings is also based on the idea of a village and imitates the patterns of traditional architecture. As the environment is dominated by various earth-toned materials, each building is clad in its own material, while at the same time being connected to the others in terms of color and design. The main buildings are connected by green-roofed glass corridors, which discreetly sink into the space between them and allow for a closed walkway through the greenery between the individual buildings.
Before
)
)
)
)
)
)
Orthogonal design of buildings
Organically shaped exterior landscaping
A comprehensive design concept in the form of a village
)
)
)
)
)
)
)
)
)
Site Plan
)
1st Floor
)
Section