)
Restavracija GB
Prenova poslovne stavbe Gorenjske Banke v Kranju
2025
Stanje
V delu
Lokacija
Kranj, Slovenija
Površina
259 m²
Program
Gostinski
Arhitektura
Ognen Arsov
Ana Kosi
Barbara Cizl
Ajda Merslavič
Nik Štrubelj
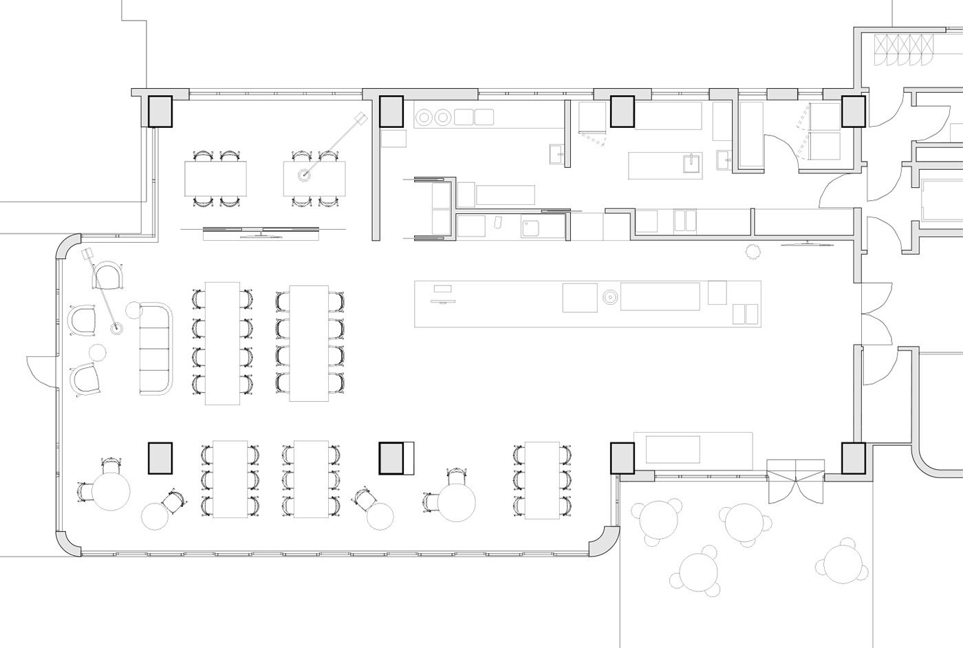
V poslovni stavbi Gorenjske banke v Kranju se nahaja dotrajana obstoječa menza. Obstoječe stanje je rezultat preteklih prenov, ki so za seboj pustile nabor različnih materialov, neusklajenih oblik in nepovezanih prostorskih potez. Zdajšnji interier je ne-povabilen in izrazito ne-reprezentativen. Prenova predvideva očiščenje obstoječega prostora vseh obstoječih materialov ter tlorisno poenostavitev v funkcionalno in pregledno zasnovan prostor. Oblikovna zasnova sledi ideji toplega opečnatega bazena, ki prostor objame ter v njem ustvari platformo za pohištvo iz naravnih materialov in pohištvo v živih barvnih odtenkih sorodnih tonalitet. Nad opečnatim bazenom se dviga nevtralno, zemeljsko »nebo« – strop in stene v nežnem bež odtenku.
Pred prenovo
)
)
)
)
)
)
Tloris